Monopoly – Buy Sell Rent

Search

Properties

Sort By:  

Louise Street, Chester

For Sale
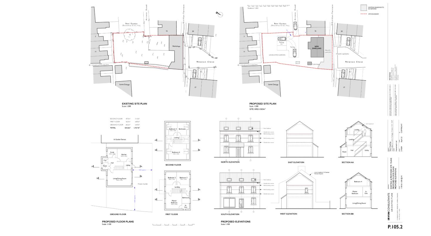
4 Bed House - Detached -  Guide Price £100,000

** INVESTMENT OPPORTUNITY** An excellent investment opportunity to purchase a plot of land within walking distance to Chester city centre. The plot of land is situated close to Chester University off Louise street and has full planning permission for a 4-5 bedroom detached dwelling.

More Details

4 1 969sqft

Upper Denbigh Road, St. Asaph

For Sale
3 Bed Bungalow -  Offers In Excess Of £425,000

Monopoly Buy Sell Rent are pleased to offer Weycote a beautifully presented and fully renovated 1930s cottage style detached bungalow, offering three spacious double bedrooms and set within just under a quarter of an acre. Located on a private plot with fantastic commuter links. Planning permission has been granted for a stunning upstairs extension to create a fourth bedroom suite, complete with dressing room, bathroom, and seating area with far-reaching views providing exciting potential for future expansion.

The property feels like a little haven with beautiful gardens on three sides, offering a place to enjoy the sun throughout the day and is surrounded by mature trees, shrubs, and timber fencing, with secure gated access to the front. Original stained-glass features have been married with newly fitted UPVC windows and the characterful composite front door enhances its period charm. Wraparound gardens, a single garage, and an inviting interior make this a must-see home.

More Details

2 3 1 1561sqft

Barmouth

For Sale
2 Bed House - Terraced -  £170,000

A rare opportunity to purchase a traditional terraced stone cottage with spectacular views from the delightful garden located in the quiet quaint historic area known as “The Rock” tucked away above the hustle and bustle of the lovely seaside town of Barmouth with its outstanding beaches on the edge of the Snowdonia National Park.

Perfect as a charming coastal home, holiday retreat or holiday let opportunity.

Bryn Meirion is a 2 bedroom stone cottage full of character which includes beamed ceilings, a traditional stone fireplace with flue for gas fire ready to be installed and original slate floors. The views from the garden are breathtaking and really have to be seen to be appreciated.

The property has gas central heating with a recently installed Worcester boiler and an EPC D.

The property has undergone extensive damp proofing and tanking and benefits from a 10 year warranty.

The area of ‘The Rock’ has been described as “so quaint is the position of these dwellings that the inhabitants may be seen quietly looking down their neighbours’ chimneys”. This is a wonderful atmospheric cottage full of traditional character. There is no vehicular access to the cottage and viewers must be prepared to ascend some sets of steps from the High Street below to the front door which all lead to the considerable charm of this unique and quirky cottage.

Note: there is no direct access from the rear of the cottage to the garden. It is accessed via a path from the front door and up a set of steps. The garden is level, laid to lawn and patios.

Being sold with the benefit of NO ONWARD CHAIN.

More Details

1 2 1

Alyndale, Hope, Flintshire

SSTC
3 Bed House - Semi-Detached -  £245,000

Situated on Alyndale in the popular village of Hope, Flintshire, this well-presented energy efficient three-bedroom semi-detached corner plot property offers spacious and convenient family living.
The internal accommodation briefly comprises a welcoming entrance hall, a generously sized lounge featuring a bay window and a contemporary open-plan kitchen and dining area, ideal for modern living.
To the first floor are three bedrooms, including a great sized principal bedroom, along with a modern three-piece family bathroom.
Externally, the property benefits from a landscaped, south facing rear garden with a patio, ideal for entertaining and raised bark area, ideal for potted plants. Steps lead up to a substantial lawned garden to the side, complete with a garden shed, providing excellent outdoor space. To the front, there is a slate-stoned driveway/garden area offering ample off-road parking.
Alyndale is situated in the desirable village of Hope which offers a range of convenient local amenities. The village is particularly popular with families due to its well regarded schools including Castell Alun High School within walking distance. Hope also benefits from useful transport links with nearby railway services providing connections towards Wrexham, the Wirral and Liverpool, while the nearby towns of Mold, Wrexham and Chester offer a wider range of shopping, dining and leisure facilities. The surrounding area also provides excellent opportunities for outdoor recreation with walking routes around Hope Mountain close by.

More Details

1 3 1 851sqft

Vale Street, Denbigh

For Sale
3 Bed House -  £155,000

Monopoly Buy Sell Rent are delighted to present this characterful Grade II Listed townhouse, set over three spacious floors and ideally located on Vale Street—just a short walk from Denbigh town centre and close to local transport links. The property offers generous accommodation, including a cosy lounge, a fitted kitchen, two double bedrooms, a single bedroom, and a family bathroom. To the rear, you’ll find an enclosed garden, mainly laid to lawn—perfect for outdoor relaxation or potential landscaping.

More Details

1 3 1

Rhyddyn Hill, Caergwrle, Wrexham

For Sale
6 Bed House - Detached -  £525,000

Situated in the sought-after village of Caergwrle and set behind private gates, this impressive six bedroom detached family home, known as The Dingle, is offered for sale with the added benefit of recent renovation and no onward chain. Occupying a generous plot and enjoying views towards Hope Mountain, the property offers spacious and versatile accommodation ideal for family living.
In brief, the ground floor comprises an entrance hallway, downstairs WC, newly fitted kitchen/breakfast/family room, open plan dining room, living room and a gym/playroom leading to a rear porch and utility room.
To the first floor, a spacious landing provides access to six bedrooms and a family bathroom. The principal suite benefits from a concealed dressing area leading through to an en-suite, while the second bedroom also enjoys a four-piece bathroom suite.
Externally, the property is approached via private gates opening onto a spacious driveway providing ample parking and access to the double integral garage. There are lawned gardens to the front and rear along with an elevated decked seating area positioned to enjoy the surrounding outlook.
Rhyddyn Hill is a desirable residential location within the village of Caergwrle, situated between Wrexham and Mold. The property falls within the catchment area for the highly regarded Castell Alun High School and is within walking distance of local amenities, eateries and leisure facilities, along with Caergwrle train station providing links to Wrexham, Bidston and connections onwards to Chester and Liverpool. The nearby A541 and A483 offer convenient access to Wrexham, Mold and Chester.

More Details

4 6 3 2525sqft

Chester Road, Wrexham

For Sale
3 Bed House - End Terrace -  £245,000

Situated along a private road in the popular Garden Village area of Wrexham, this well-proportioned three bedroom end-terraced home is offered for sale with the added benefit of no onward chain and has recently benefited from a new roof. In brief, the accommodation comprises an entrance hallway, spacious living room, sitting room and a kitchen opening into a dining area with a useful under-stairs utility space, all to the ground floor providing versatile living accommodation. To the first floor, the landing gives access to three bedrooms, a family bathroom and a separate WC. Externally, the property benefits from a paved driveway to the front. There is access alongside the home via timber gates leading to a workshop/garage area and a pleasant rear garden which has been landscaped with established shrubs and trees, along with a paved patio, decking area and pond. Chester Road is well positioned within Garden Village, a popular and well-established residential area on the outskirts of Wrexham. A range of local amenities are within walking distance including a convenience store, reputable schools and medical facilities. Acton Park is also nearby offering scenic walks and green space, while regular bus services provide access to both Wrexham city centre and Chester. The nearby A483 provides excellent commuter links to Chester, Oswestry and the wider North West.

More Details

1 3 1 1026sqft

Heol Llawhaden, Wrexham

SSTC
3 Bed House - Detached -  £295,000

Situated within a quiet cul-de-sac in the highly regarded residential area of Acton, this three bedroom detached family home is offered for sale with the benefit of a new combination boiler being fitted last year. The ground floor has been extended creating open plan living areas. The accommodation comprises an entrance hallway, spacious living room, kitchen, dining room, additional sitting room, conservatory, utility room and ground floor shower room, providing versatile space. To the first floor, the landing gives access to three bedrooms and a family bathroom. The property benefits from a driveway providing off-road parking, an integral garage, and a garden to the front. To the rear is a landscaped garden incorporating a paved patio area and lawn area ideal for outdoor seating and family use. Heol Llawhaden is located within the popular Acton area of Wrexham, known for its established residential setting and convenient access to local amenities. A range of shops, schools and everyday facilities are within close proximity, along with Acton Park offering scenic walks and green space. Wrexham city centre is a short drive away, and the property is well positioned for access to the A483, providing excellent commuter links towards Chester, Oswestry and the wider North West.

More Details

4 3 2 1203sqft

Rhuddlan Road, Acrefair, Wrexham

For Sale
4 Bed House - Detached -  £350,000

Situated within a quiet cul-de-sac in the village of Acrefair, this four bedroom detached family home is offered for sale with the added benefit of no onward chain and enjoys attractive countryside views to the rear. In brief, the accommodation comprises an entrance hallway, living room opening into a dining room with views over the rear garden, kitchen/breakfast room, utility area and downstairs WC, providing ample and versatile ground floor living space. To the first floor, the landing gives access to four bedrooms and a family bathroom, with the principal bedroom benefiting from an en-suite shower room. Externally, the property benefits from a garage and a tarmacadam driveway providing off-road parking to the front, along with lawned gardens to both the front and rear. A particular feature of the home is the pleasant countryside outlook enjoyed from the rear garden. Rhuddlan Road forms part of a quiet cul-de-sac in Acrefair, where a range of local amenities are within walking distance including shops, eateries, schools and leisure facilities. The surrounding villages offer further amenities, while nearby countryside walks can be found at Trevor and Garth Woods. The popular town of Llangollen is just a short drive away, along with Wrexham city centre. The nearby A483 provides excellent commuter links to Oswestry, Chester and the wider North West.

More Details

2 4 2 1095sqft

Glasfryn, Henllan, Denbigh

For Sale
3 Bed Bungalow -  £275,000

Monopoly Buy Sell Rent are pleased to offer for sale this well-maintained three-bedroom bungalow, tucked away in a peaceful cul-de-sac setting in the sought-after village of Henllan. Offering comfortable single-storey living, the property benefits from a spacious lounge, an open-plan kitchen and dining area, fitted bedroom storage, a practical shower room, driveway parking, and a garage. Outside, the home enjoys a private enclosed garden designed for ease of maintenance, while being ideally positioned within walking distance of the local school and park. This is a superb home for those seeking a quiet village location with everyday amenities close at hand.

More Details

2 3 1

Handsworth Crescent, Rhyl

For Sale
3 Bed House - Semi-Detached -  £235,000

MONOPOLY BUY SELL RENT are pleased to offer for sale this well-presented three-bedroom home, located in Rhyl within walking distance of local amenities and excellent schools. The property benefits from off-road parking for 2–3 vehicles, a spacious lounge/diner with patio doors opening to the rear garden, a well-appointed kitchen with breakfast bar and utility area, plus a WC, games room and useful storage/partial garage space. Upstairs offers three bedrooms and a modern bathroom, while outside there is an enclosed garden with patio seating, lawn, and established planting providing good privacy.

More Details

3 3 1

Tudor Road, Wrexham

For Sale
2 Bed Bungalow - Semi Detached -  £209,000

Situated close to Wrexham city centre and the picturesque Erddig National Trust estate, this two bedroom semi-detached bungalow is offered for sale with the added benefit of no onward chain.
In brief, the accommodation comprises an entrance hallway, kitchen/breakfast room with useful pantry, living room, two double bedrooms and a shower room.
Externally, the property benefits from a detached garage and a spacious driveway providing off-road parking to the front and side. To the rear is a block paved, low-maintenance garden area.
Tudor Road is conveniently located within walking distance of Wrexham city centre, where a wide range of shops, eateries, leisure facilities and public transport links can be found. The beautiful parkland of Erddig National Trust is also nearby, offering scenic countryside walks. The A483 is just a short drive away, providing excellent road links to Chester, Oswestry and the wider North West.

More Details

1 2 1 735sqft